New Jersey Homes For Sale

369 WHITON ST, JC, Bergen Lafayett, NJ, 07304

  • $1,525,000
369 WHITON ST

369 WHITON ST, JC, Bergen Lafayett, NJ, 07304

369 WHITON ST
  • $1,525,000

Description

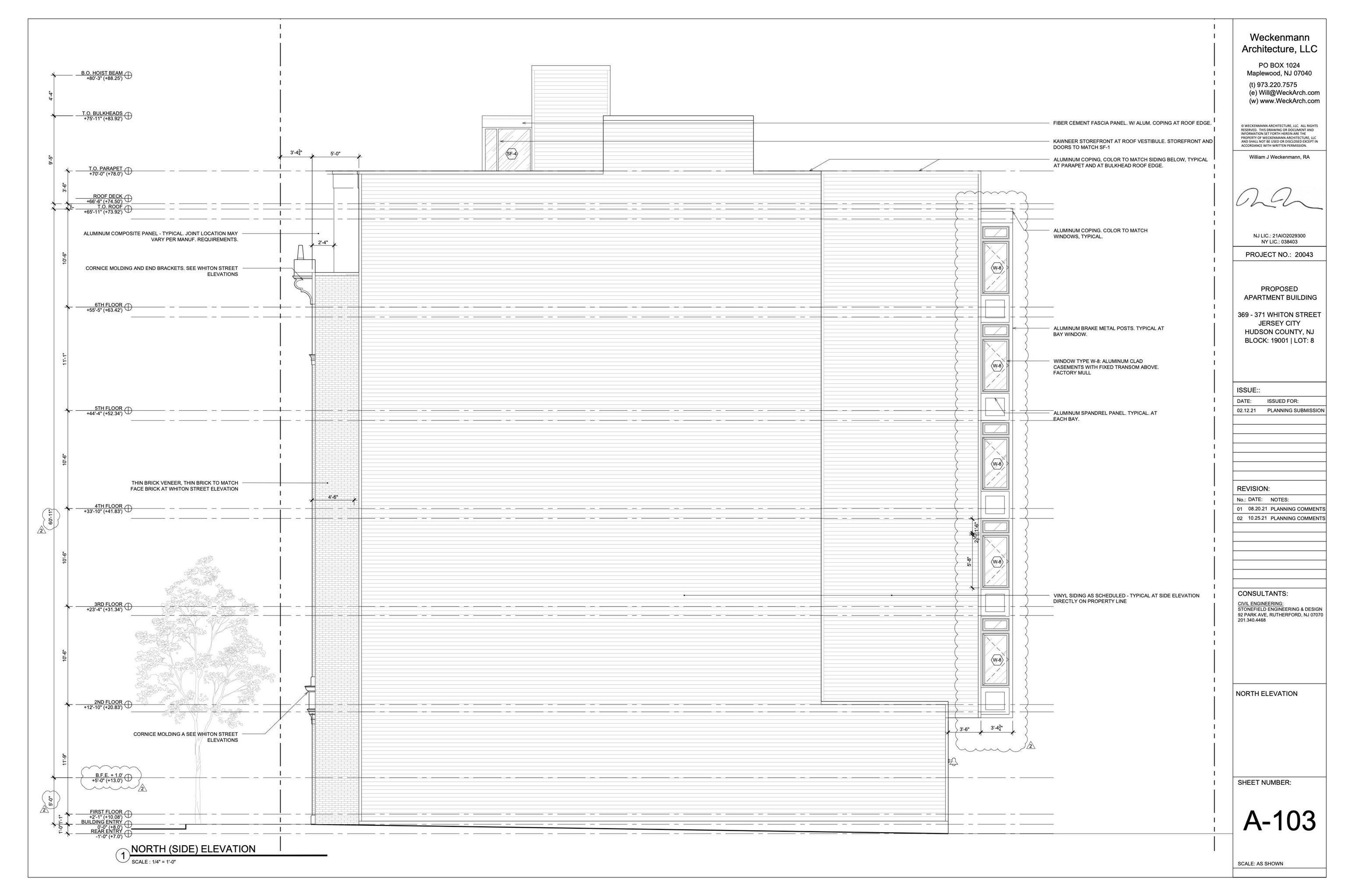
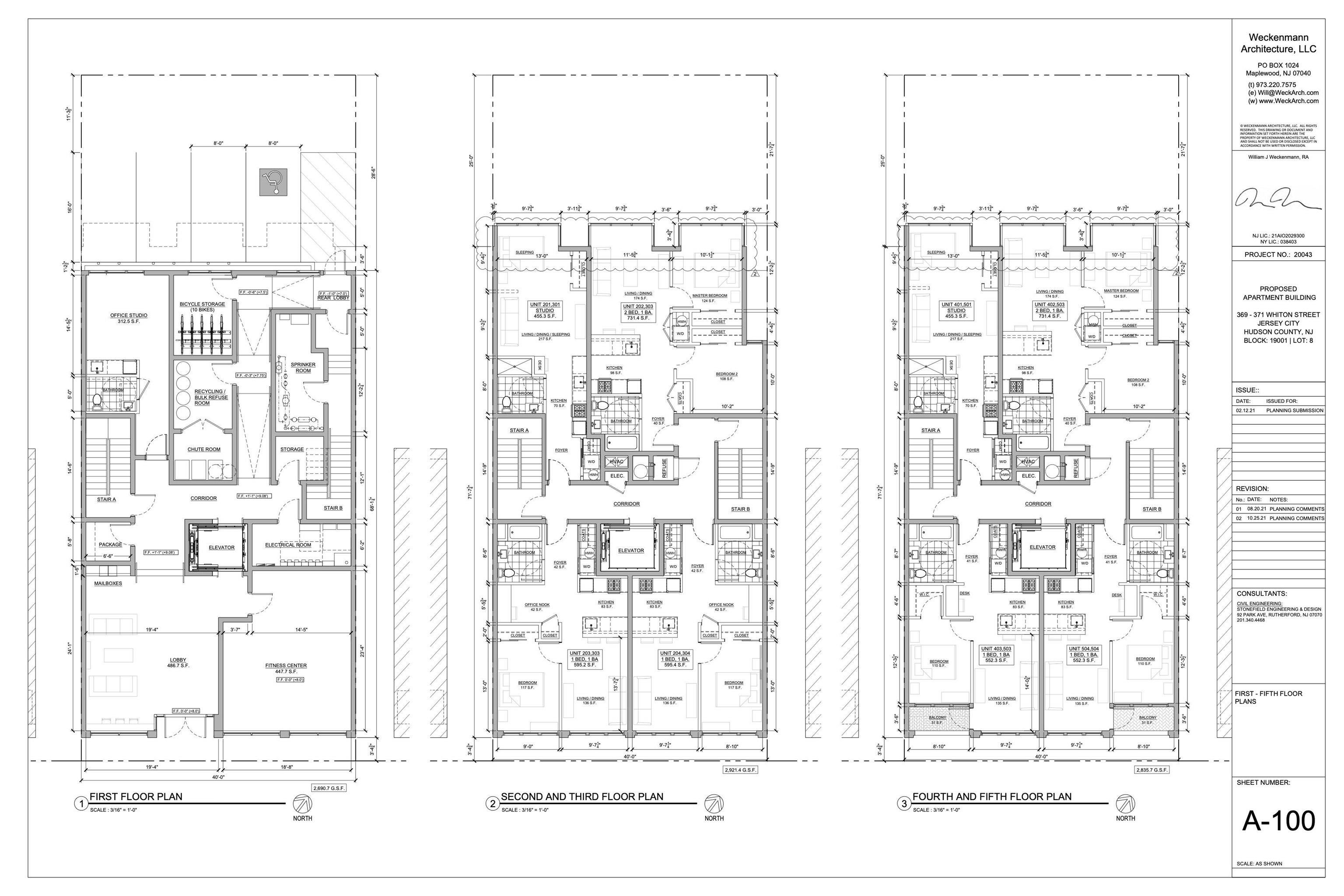
FULL APPROVED! Terrific Jersey City address for a new development building located at 369-371 Whiton Street. This is a SIX story property with a proposed 20 units, varying one bedroom, one bedroom with flex space and two-bedroom units. First floor is a proposed lobby and fitness space. The property has a front yard and extensive green rooftop designed into the plans. Perfect condo project for JC with efficient luxury in a perfect location. This is a great opportunity to develop in Jersey City.

Details

Mortgage Calculator

Monthly
  • Principal & Interest
  • Property Tax
  • Home Insurance
  • PMI
$
$
%
$
$
$

360° Virtual Tour

What's Nearby?

Please supply your API key Click Here

Contact Information

View Listings

Enquire About This Property

Listed By: SERHANT NEW JERSEY LLC

Similar Listings

0 Review

Sort by:
Leave a Review

Leave a Review

Crg Properties NJ
  • Crg Properties NJ

Compare listings

Compare
Crg Properties NJ
  • Crg Properties NJ