43 WEST 43RD ST, Bayonne, NJ, 07002 3007

  • $650,000
43 WEST 43RD ST

43 WEST 43RD ST, Bayonne, NJ, 07002 3007

43 WEST 43RD ST
  • $650,000

Description

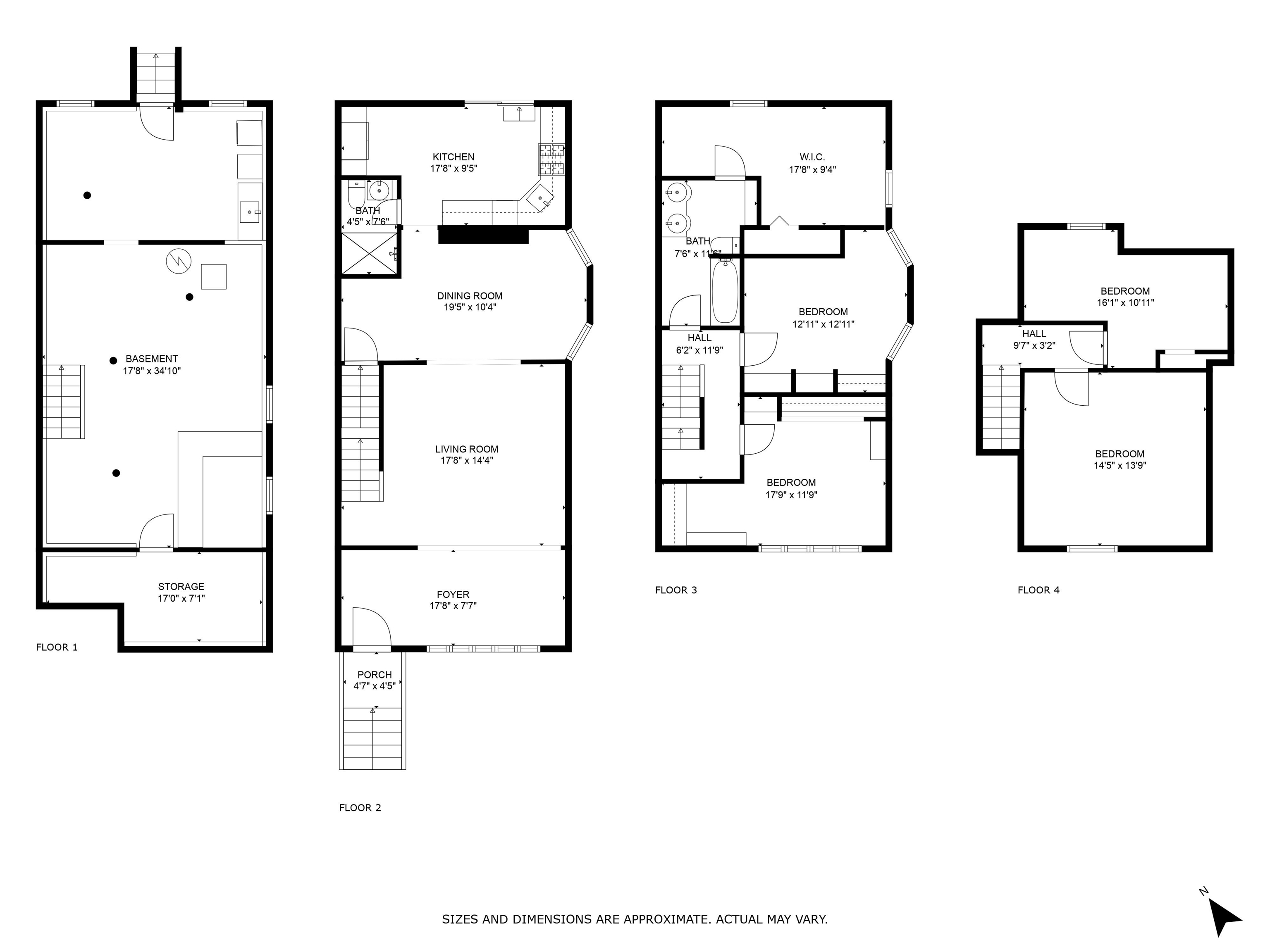
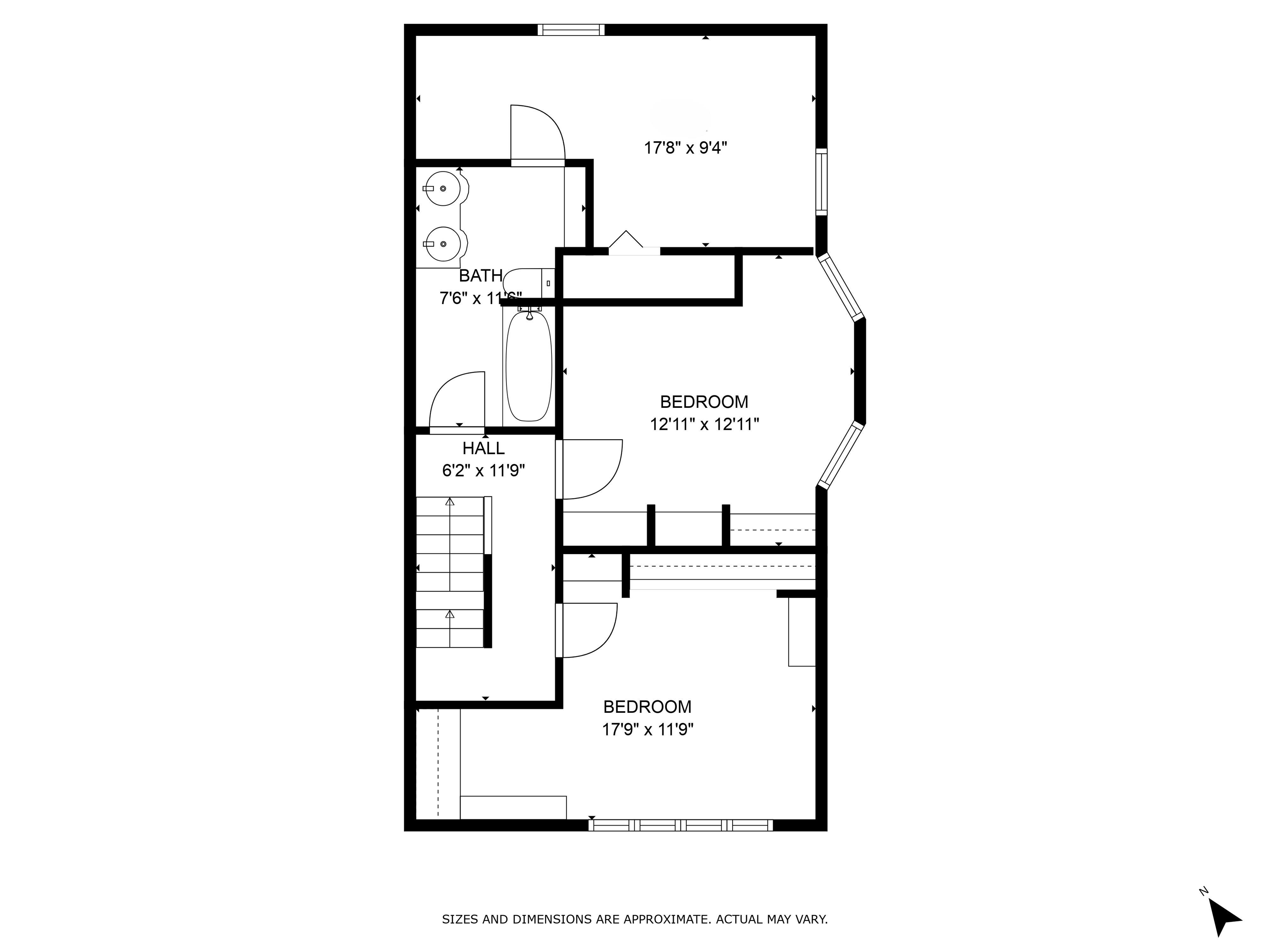
Residence 43 on W 43rd Street is a spacious 5 bedroom 2 bathroom single family home with central AC, above ground pool and 3 parking spaces located in the heart of Bayonne and steps from Magic Fountain Ice Cream. The main level of the home is ideal for entertaining with an oversized living room, open dining room, full bathroom, and kitchen that opens directly to the backyard, complete with above ground swimming pool and wrap-around deck. The second level is complete with 3 bedrooms and a full bathroom, while 2 additional bedrooms are on the third level, providing flexibility for home office space. The basement offers an abundance of storage, laundry area and an additional entertaining area.

Details

Features

  • A/C Central
  • Aluminum/Vinyl
  • Dishwasher
  • Full
  • Gas
  • Hardwood Floor
  • Hot Air
  • Microwave
  • Near Bus
  • Near Parks
  • Near Schools
  • Near Shopping
  • Near Train
  • Oven/Range Gas
  • Partial Finish
  • Pool
  • Refrigerator
  • Stucco

Mortgage Calculator

Monthly
  • Principal & Interest
  • Property Tax
  • Home Insurance
  • PMI
$
$
%
$
$
$

360° Virtual Tour

What's Nearby?

Please supply your API key Click Here

Contact Information

View Listings

Enquire About This Property

Listed By: COMPASS NEW JERSEY, LLC

Similar Listings

0 Review

Sort by:
Leave a Review

Leave a Review

Compare listings

Compare
Crg Properties NJ
  • Crg Properties NJ