1094 AVENUE C, Bayonne, NJ, 07002

  • $510,000
1094 AVENUE C

1094 AVENUE C, Bayonne, NJ, 07002

1094 AVENUE C
  • $510,000

Description

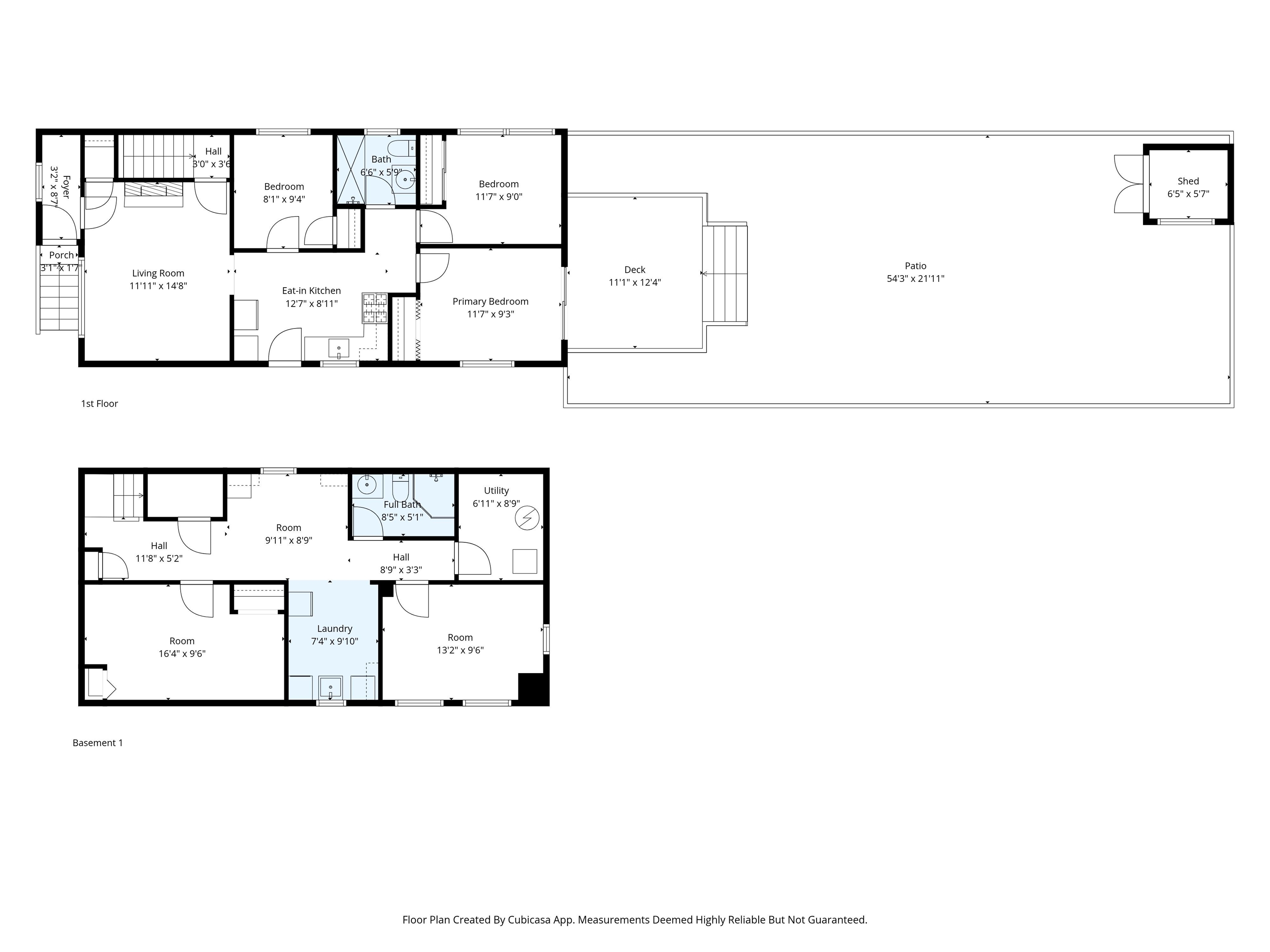
Discover the possibilities at 1094 Avenue C, where comfortable living meets thoughtful design. This 3 bedroom single family delivers a welcoming setting complemented by two flexible bonus rooms located in the finished basement, offers endless possibilities to create a gym, office, or tailor it to your needs. Enjoy direct access from the main bedroom to the private deck, overlooking the backyard space, an ideal setting for relaxing or entertaining. Why you will love it: in today’s world, having extra room is key. With two bonus rooms, you will no longer have to choose between a guest room and an office, you can have both. Conveniently located near public transportation, shopping, dining, and major highways, this home offers easy access to everything Bayonne has to offer while keeping daily commutes simple an stress-free. Sold as is.

Details

Features

  • A/C Central
  • Gas

Mortgage Calculator

Monthly
  • Principal & Interest
  • Property Tax
  • Home Insurance
  • PMI
$
$
%
$
$
$

360° Virtual Tour

What's Nearby?

Please supply your API key Click Here

Contact Information

View Listings

Enquire About This Property

Listed By: WEICHERT REALTORS

Similar Listings

0 Review

Sort by:
Leave a Review

Leave a Review

Compare listings

Compare
Crg Properties NJ
  • Crg Properties NJ